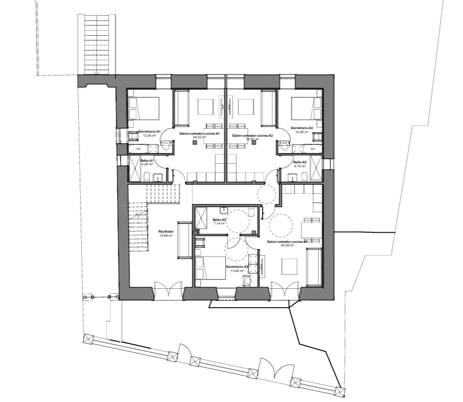
El objeto del proyecto es rehabilitar una casa señorial ubicada en Carasa (Cantabria), construida en el año 1900, para convertirla en edificio de apartamentos turísticos. Se trata de un edificio de tres plantas, con estructura de muros de carga de mampostería, revocado exteriormente, estructura de pilares y vigas de madera y cubierta de teja. En la planta inferior se prevén tres apartamentos, en la primera planta planta se prevén cuatro apartamentos y la última planta, que es abuhardillada, quedará diáfana excepto un pequeño cuarto de instalaciones. Todos los apartamentos disfrutarán de vistas de los jardines delantero y trasero. Se prevé realizar un estudio de las vigas y pies derechos de madera que se pueden conservar, se realizarán los refuerzos necesarios y se sustituirán los elementos dañados.










Javier-Tamer Elshiekh Melgar. Arquitecto